Loja-Salão, 24 m²
Mombaça, São Roque - SP
SALÕES COMERCIAIS NO TREVO DO MOMBAÇA, SENDO UMA ÓTIMA LOCALIZAÇÃO. LOCALIZADO NUMA DAS REGIÕES QUE MAIS CRESCE EM SÃO ROQUE- SP.
ÓTIMOS PARA LANCHONETE, COMERCIO DE PLANTAS, DECORAÇÕES, FARMACIA, CABELEIREIRO, SALÃO DE BELEZA E ENTRE OUTROS !!!
O IPTU SERÁ COBRADO DE FORMA PROPORCIONAL, LEVANDO EM CONSIDERAÇÃO O TAMANHO DE CADA SALÃO.
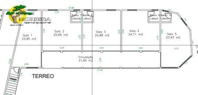
PAVIMENTO TÉRREO - SALÕES
SALAO 1 - 23,90 M² - ALUGUEL R$ 1.100,00 + IPTU R$ 17,28
SALAO 2 - 25,69 M² - ALUGUEL R$ 1.100,00 + IPTU R$ 18,57
SALAO 3 - 24,88 M² - ALUGUEL R$ 1.100,00 + IPTU R$ 17,99
SALAO 4 - 24,71 M² - ALUGUEL R$ 1.100,00 + IPTU R$ 17,86
SALAO 5 - 23,43 M² - ALUGUEL R$ 1.100,00 + IPTU R$ 16,94
IMPORTANTE: AS VAGAS DE ESTACIONAMENTO SERÃO ROTATIVAS, APENAS PARA OS CLIENTES !
TAXA DE LIMPEZA R$ 50,00 + SEGURO A SER COTADO !
- EM MÉDIA POSSUEM 24M². A ENERGIA É INDEPENDENTE, POREM A AGUA SERÁ DIVIDIDA ENTRE OS SALÕES.
ACEITA SEGURO FIANÇA, FIADOR OU CAPITALIZAÇÃO (6 X O VALOR DO ALUGUEL) !!
IMPORTANTE: PREVISÃO PARA FICAREM PRONTOS ATÉ 10 DE JUNHO.
AGENDA JÁ SUA VISITA !!!