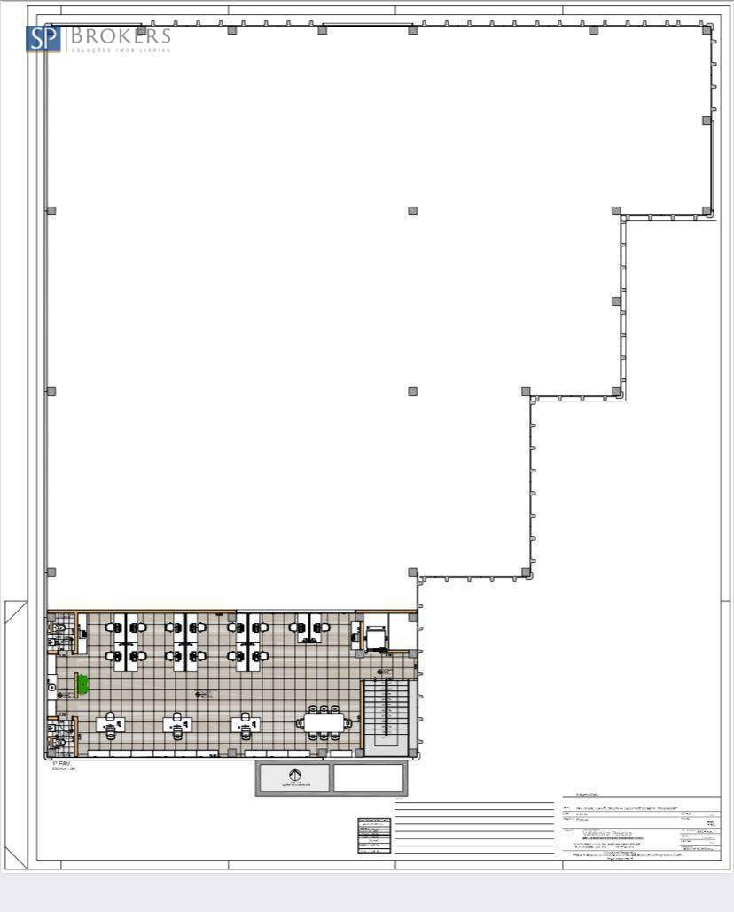
Depósito-Galpão-Armazém para alugar, 1523m²

Europark Comercial, Indaiatuba - SP

Código: GA0297
  • Aluguel: R$ 32.000
  • IPTU: R$ 268

  • 1982m² Total

  • Área total do imóvel
  • 1523m² Útil

  • Área útil do imóvel
  • 4 Vagas

  • Quantidade de vagas de garagem
  • 4 Banheiros

  • Quantidade de banheiros do imóvel
Aluguel

R$ 32.000

IPTU
Imposto anual cobrado pela prefeitura para imóveis urbanos.

R$ 268

Anunciante

SP Brokers Imóveis

Telefone

(08) 00555-2100

Ao clicar em "Ver telefone", "Enviar mensagem" ou "WhatsApp", você confirma que concorda com nossos Termos de uso e Políticas de privacidade.


Descrição do imóvel

Galpão para locação no bairro Europark Comercial em Indaiatuba/SP. Galpão com 1.523 m² de área útil. Pré-moldado, fechamentos laterais, frontal e fundo sem placas de concreto, cobertura em telhas de concreto W, fabricação em Poliprem Pré-moldados. Altura livre para armazenamento de 10 metros. Amplos espaços laterais e de frente para futuras coberturas e estacionamentos dentro da área do terreno. Espaço para futuro elevador ou Montacarga, sobrecarga do primeiro e segundo pavimento para 300 kg / m2. Previsão de carga nos pilares para futura ponte rolante de 5 toneladas. Doca lateral para descarga de carreta side e fundos. Caixa d água metálica para 40 m3, com reserva de incêndio de 32,00 m², atendendo diversos riscos de seguro. Excelente construção, acabamento e durabilidade. Fachada em pele de vidro. Terreno de esquina com 1.982 m² e amplos espaços para usos diversos! Agende a sua visita! A SP Brokers imóveis é especialista em realizar sonhos! Fornecemos todo suporte necessário para locação, venda e financiamento, contamos com profissionais altamente treinados, atuando fortemente com imóveis prontos, locações e permutas. Contato 0800.555.2100.


Características do imóvel

  • Despensa

    Despensa

    Área para armazenamento de alimentos e utensílios.

Responsável pelo anúncio

Nome do anunciante: SP Brokers Imóveis

Telefone:

(08) 00555-2100

CRECI: 27811-J


Aluguel

R$ 32.000
IPTU
Imposto anual cobrado pela prefeitura para imóveis urbanos.

R$ 268

Anunciante

SP Brokers Imóveis

Telefone

(08) 00555-2100

Ao clicar em "Ver telefone", "Enviar mensagem" ou "WhatsApp", você confirma que concorda com nossos Termos de uso e Políticas de privacidade.

Visualização no mapa

Europark Comercial, Indaiatuba - SP