Apartamento à venda com 2 quartos, 42m²

Caguassu, Sorocaba - SP

Código: 1330
  • Venda: R$ 135.000
  • Condomínio: R$ 110

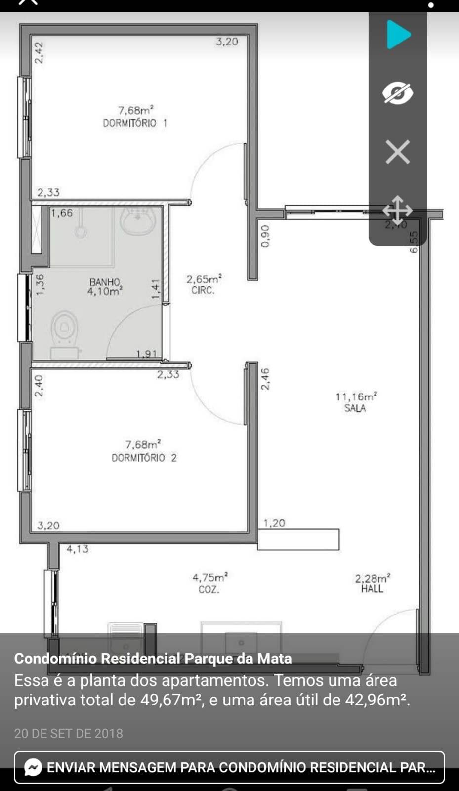
  • 49m² Total

  • Área total do imóvel
  • 42m² Útil

  • Área útil do imóvel
  • 1 Vagas

  • Quantidade de vagas de garagem
  • 2 Quartos

  • Quantidade de quartos do imóvel
  • 1 Banheiros

  • Quantidade de banheiros do imóvel
Venda

R$ 135.000

Condomínio
Valor mensal pago para a manutenção das áreas comuns do imóvel.

R$ 110

Anunciante

Tríade Negócios Imobiliários

Telefone

(15) 99657-3517

Ao clicar em "Ver telefone", "Enviar mensagem" ou "WhatsApp", você confirma que concorda com nossos Termos de uso e Políticas de privacidade.


Descrição do imóvel

ATENÇÃO – ZONA NORTE DE SOROCABA! ????

APARTAMENTO TÉRREO À VENDA – R$ 135.000,00

Oportunidade rara – venda direta com o proprietário!

Preço abaixo do mercado – somente à vista (não aceita financiamento)

Condomínio Residencial Parque da Mata

Bairro Caguassu, ao lado do Condomínio Serra Azul – Zona Norte de Sorocaba

Área total: 49,76 m²

Área útil: 42,96 m²

Apartamento térreo

Características do imóvel:

2 quartos bem distribuídos

Sala aconchegante

Cozinha funcional

Banheiro social

Vaga de carro em frente ao apartamento

Ambiente tranquilo e familiar

Diferenciais:

Localização estratégica, com fácil acesso

Ideal para morar ou investir

Condomínio organizado

Documentação em dia – é pegar e mudar!

Preço imperdível para fechar rápido!

Entre em contato e garanta essa oportunidade única na Zona Norte

Características do imóvel

Área de serviço

Cozinha

Lavanderia

Piso frio

PORTARIA 24 HORAS


Características do imóvel

  • Quintal cercado

    Quintal cercado

    Área externa cercada, ideal para crianças e animais de estimação.

  • Lavanderia

    Lavanderia

    O imóvel possui um espaço dedicado para lavar e secar roupas.

  • Quartos de empregada

    Quartos de empregada

    O imóvel possui quartos dedicados para empregados.

Responsável pelo anúncio

Nome do anunciante: Tríade Negócios Imobiliários

Telefone:

(15) 99657-3517

CRECI: 223903-F


Venda

R$ 135.000
Condomínio
Valor mensal pago para a manutenção das áreas comuns do imóvel.

R$ 110

Anunciante

Tríade Negócios Imobiliários

Telefone

(15) 99657-3517

Ao clicar em "Ver telefone", "Enviar mensagem" ou "WhatsApp", você confirma que concorda com nossos Termos de uso e Políticas de privacidade.

Visualização no mapa

Caguassu, Sorocaba - SP