Esse imóvel não está mais disponível!


Conjunto Comercial-Sala para alugar, 3066m²

Cerqueira César, São Paulo - SP

Código: LL23431
  • Aluguel: R$ 370.000
  • IPTU: R$ 32.126

  • 3066m² Útil

  • Área útil do imóvel
  • 60 Vagas

  • Quantidade de vagas de garagem
  • 2 Banheiros

  • Quantidade de banheiros do imóvel
Aluguel

R$ 370.000

IPTU
Imposto anual cobrado pela prefeitura para imóveis urbanos.

R$ 32.126

Anunciante

FMS Imóveis

Telefone

(11) 2337-7674

Ao clicar em "Ver telefone", "Enviar mensagem" ou "WhatsApp", você confirma que concorda com nossos Termos de uso e Políticas de privacidade.


Descrição do imóvel

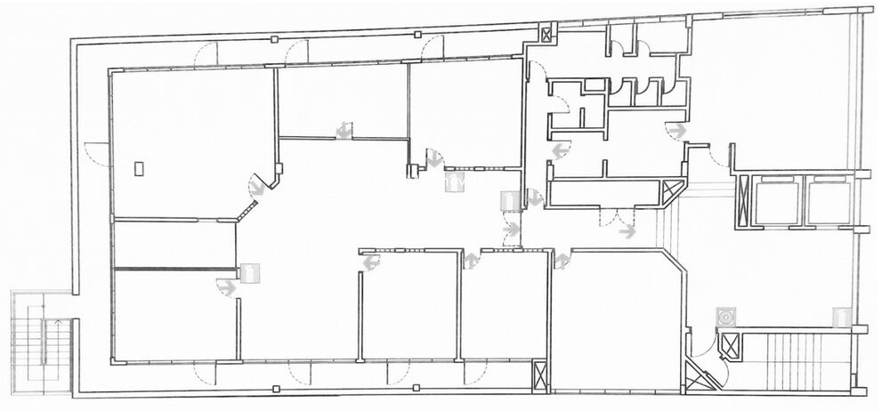
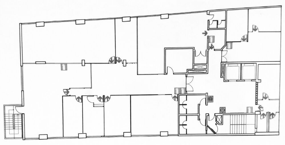
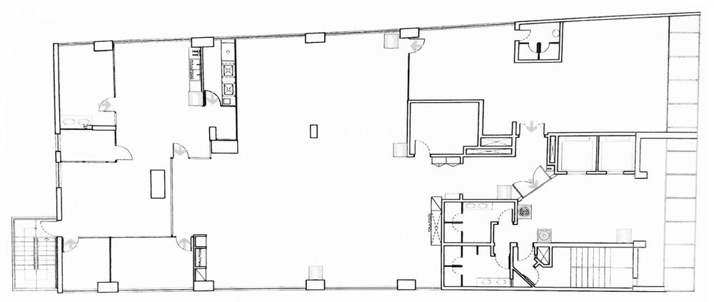
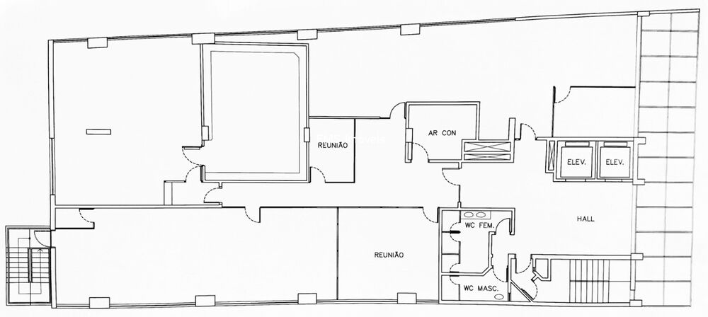
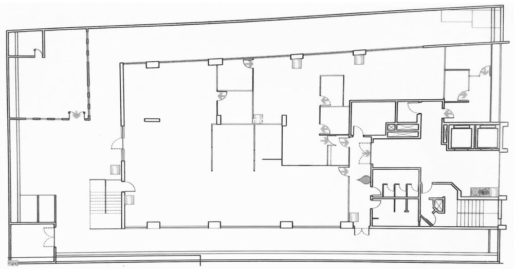
Venha conferir esse incrível conjunto comercial disponível para locação! Com uma área construída de 5.717 m2, sendo 3066m² de área útil e área de terreno de 1.097 m2, esse imóvel conta com 9 andares, 60 vagas de garagem, 2 banheiros e uma série de outros atrativos.

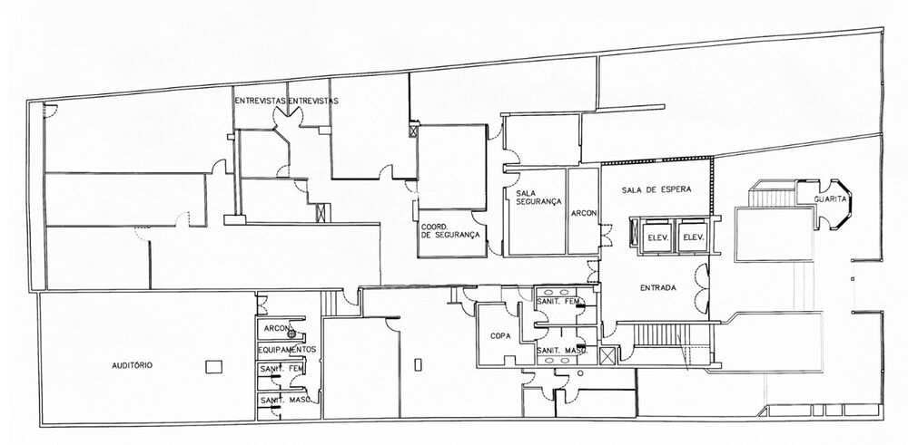
No térreo, você encontrará uma recepção ampla e moderna, um auditório equipado, um show room para apresentações e negociações, um cofre para maior segurança, além de uma garagem e estacionamento para sua comodidade.

Os 2 elevadores com capacidade para 700 kg da marca Otis facilitam o acesso a todos os andares, onde você poderá desfrutar de espaços de lazer, uma cozinha industrial, refeitório, copa e WCs bem distribuídos.

Além disso, o imóvel conta com controle de acesso, sistema de segurança, sistema de telefonia, fibra óptica, sistema de para raios, sistema de combate contra incêndio, escada de emergência e torre de resfriamento na cobertura com ar condicionado.

Localizado em uma região de fácil acesso, próximo às estações do metrô Sumaré (Linha 2 Verde) e às principais vias da região, como as avenidas Rebouças e Dr. Arnaldo, e as ruas Henrique Schaumann, Teodoro Sampaio, Cardeal Arco Verde e Oscar Freire, esse conjunto comercial é ideal para o seu negócio prosperar.

Não perca mais tempo, agende agora mesmo uma visita e surpreenda-se com todas as possibilidades que esse imóvel pode oferecer para o seu negócio!


Características do imóvel

Responsável pelo anúncio

Nome do anunciante: FMS Imóveis

Telefone:

(11) 2337-7674

CRECI: 22.461-J


Aluguel

R$ 370.000
IPTU
Imposto anual cobrado pela prefeitura para imóveis urbanos.

R$ 32.126

Anunciante

FMS Imóveis

Telefone

(11) 2337-7674

Ao clicar em "Ver telefone", "Enviar mensagem" ou "WhatsApp", você confirma que concorda com nossos Termos de uso e Políticas de privacidade.

Visualização no mapa

Cerqueira César, São Paulo - SP