Terreno à venda, 1633

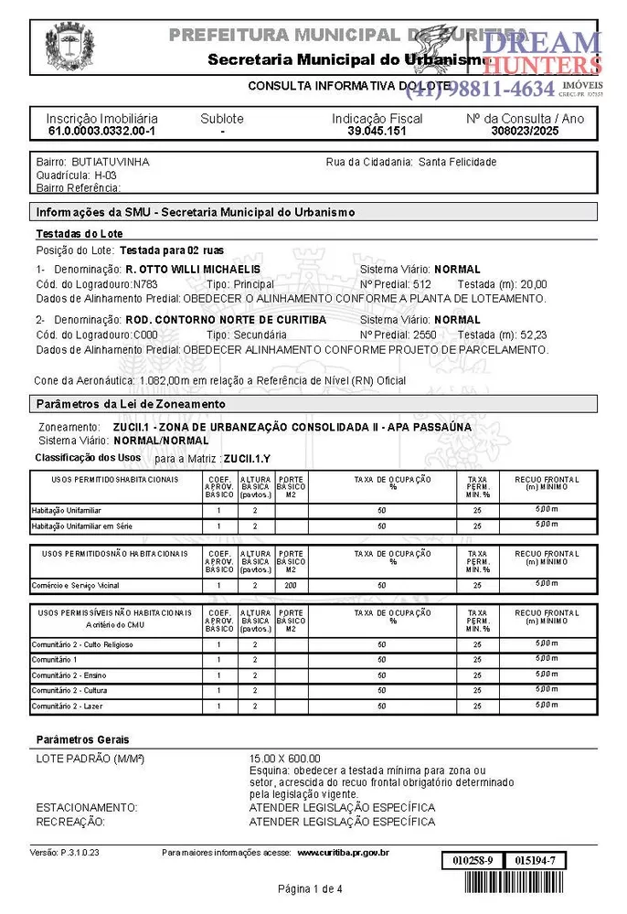
Rua Otto Willi Michaelis, Butiatuvinha, Curitiba - PR

Código: 6014
  • Venda: R$ 1.530.000

  • 1633m² Total

  • Área total do imóvel
Venda

R$ 1.530.000

Anunciante

DREAM HUNTERS IMOVEIS

Telefone

(41) 98811-4634

Ao clicar em "Ver telefone", "Enviar mensagem" ou "WhatsApp", você confirma que concorda com nossos Termos de uso e Políticas de privacidade.


Descrição do imóvel

Este terreno impressiona pelo seu tamanho generoso de 1.633,14m² e sua testada de 20 metros de frente.

Totalmente plano e voltado para o nordeste, o imóvel está localizado em uma rua tranquila e sem saída, proporcionando exclusividade e conforto. Situado entre os prestigiados bairros de Santa Felicidade e Butiatuvinha, o terreno faz frente para o renomado Condomínio Green Valley e está cercado por belas residências.

Além disso, a localização estratégica oferece proximidade com a Escola Internacional Everest e todo o comércio de Santa Felicidade e São Braz, atendendo perfeitamente às necessidades do dia a dia.

Com um enorme potencial para construção de uma residência unifamiliar, este terreno é ideal para quem busca desenvolver um projeto exclusivo em uma região valorizada e bem estabelecida.

1633 m² Argiloso Plano

Energia elétrica - Rede de água e esgoto

Rua asfaltada - Frente para o norte

Conexão à internet - TV à cabo

Aproveite esta oportunidade única de adquirir um terreno com localização privilegiada!

Ficou interessado, consulte nossa equipe, somos especialistas em entender sua necessidade.

***Preço e disponibilidade do imóvel sujeitos a alteração sem aviso prévio.


Características do imóvel

Responsável pelo anúncio

Nome do anunciante: DREAM HUNTERS IMOVEIS

Telefone:

(41) 98811-4634

CRECI: J-07853


Venda

R$ 1.530.000
Anunciante

DREAM HUNTERS IMOVEIS

Telefone

(41) 98811-4634

Ao clicar em "Ver telefone", "Enviar mensagem" ou "WhatsApp", você confirma que concorda com nossos Termos de uso e Políticas de privacidade.