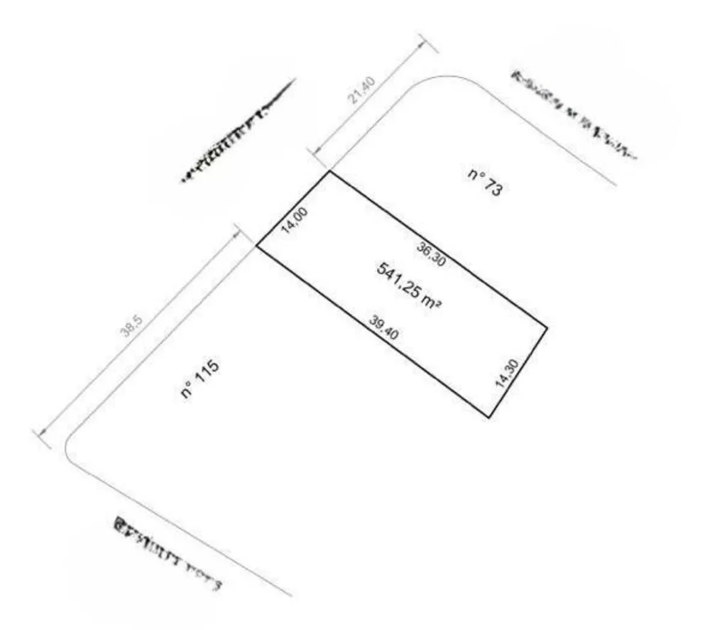
Terreno à venda, 541m²

Balneário Praia do Pernambuco, Guarujá - SP

Código: 184
  • Venda: R$ 480.000
  • IPTU: R$ 80

  • 541m² Total

  • Área total do imóvel
  • 541m² Útil

  • Área útil do imóvel
Venda

R$ 480.000

IPTU
Imposto anual cobrado pela prefeitura para imóveis urbanos.

R$ 80

Anunciante

Imobiliária Sobre as Ondas

Telefone

(13) 99706-7818

Ao clicar em "Ver telefone", "Enviar mensagem" ou "WhatsApp", você confirma que concorda com nossos Termos de uso e Políticas de privacidade.


Descrição do imóvel

Excelente oportunidade de investimento em um terreno localizado no privilegiado bairro Balneário Praia do Pernambuco, em Guarujá-SP. Com uma área total de 541.25m2 e posição solar favorável, com sol da manhã e tarde, este terreno é ideal para construir a casa dos seus sonhos.

Além disso, sua localização estratégica proporciona fácil acesso a diversos serviços essenciais, como escolas, farmácias, igrejas, padarias, supermercados e transporte público. Tudo isso para garantir praticidade e comodidade no seu dia a dia.

Se você busca um terreno para comprar na região, não perca essa oportunidade única. Entre em contato conosco através do formulário disponível no site e agende uma visita para conhecer de perto essa incrível opção de investimento.

Não deixe essa chance passar e garanta agora mesmo o seu terreno no bairro Balneário Praia do Pernambuco, em Guarujá-SP. Invista no seu futuro e na realização do seu projeto de vida. Estamos à disposição para auxiliar em todas as etapas desse processo. Aproveite!

<i>As informações estão sujeitas a alterações. Consulte o corretor responsável.</i>

Chave do anúncio: F63j9lI1cqn74mlf


Características do imóvel

Responsável pelo anúncio

Nome do anunciante: Imobiliária Sobre as Ondas

Telefone:

(13) 99706-7818

CRECI: 46357-J


Venda

R$ 480.000
IPTU
Imposto anual cobrado pela prefeitura para imóveis urbanos.

R$ 80

Anunciante

Imobiliária Sobre as Ondas

Telefone

(13) 99706-7818

Ao clicar em "Ver telefone", "Enviar mensagem" ou "WhatsApp", você confirma que concorda com nossos Termos de uso e Políticas de privacidade.

Visualização no mapa

Balneário Praia do Pernambuco, Guarujá - SP