Sobrado, 3 quartos
São Bernardo, Ji-Paraná - RO
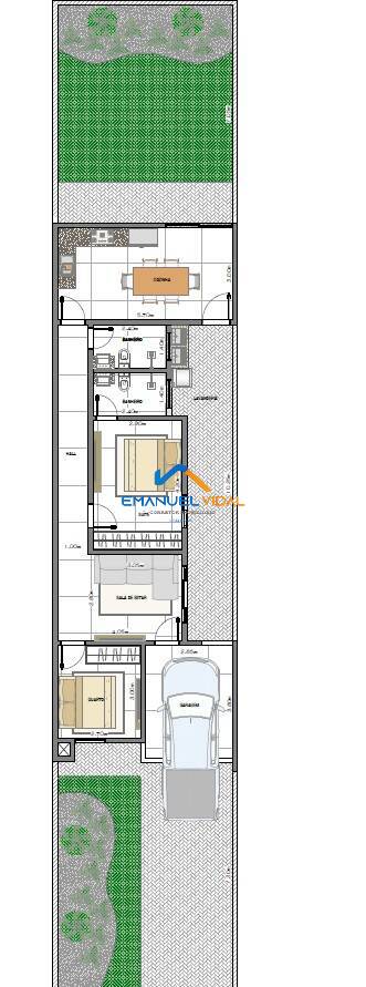
Sobrado à venda localizado no bairro São Bernardo, a apenas uma quadra da -364 e aproximadamente 400,00 metros da Havan, oferecendo uma localização estratégica e de fácil acesso. O imóvel dispõe de 3 quartos, sendo 1 suíte com closet, banheiro social, lavabo, sala de estar, cozinha, área gourmet, quintal totalmente calçado e 1 vaga de garagem. Com acabamento de qualidade. Apto a financiamento.